1к ЖК Континент / Люстдорфская дорога. Нотариальная сделка.
- Категорія: Нерухомість / Квартири, кімнати / 1-кімнатні квартири
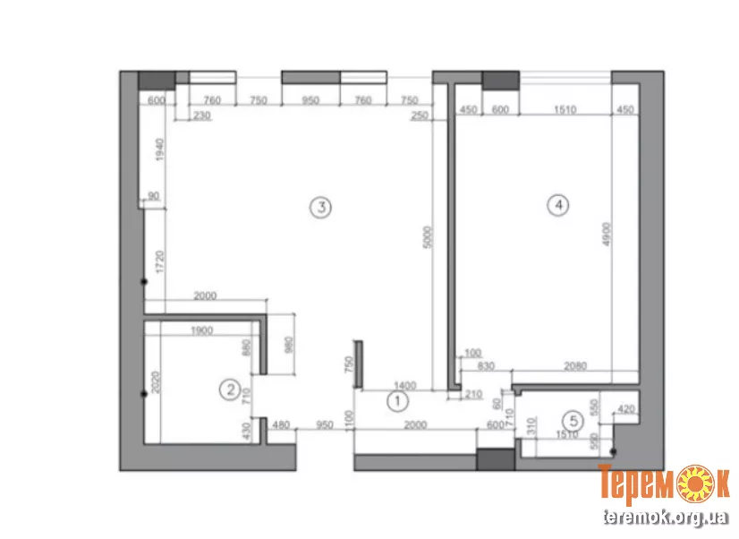
Нотариальная сделка. 1к ЖК Континент / Люстдорфская дорога. 8/12 эт. Общая площадь 47 м. Комната 15 м, кухня-гостиная 21 м. Сан узел совмещен. В квартире сделаны самые сложные работы - электрика, сантехника, стены и выводы под кондиционеры. Дом сдан
подано: 28.11.2025
номер: 544448 перегляди: 179
Схожі оголошення
РОЗМІСТИТИ ОГОЛОШЕННЯ на 100 дошок / Спробуй!

Все для дітей
Нерухомість
Автотранспорт
Електроніка та техніка
Бізнес / Робота
Послуги
Мода та стиль
Будинок та Сад
Меблі
Тварини та рослини
Обладнання
Будівництво та ремонт
Спорт / Відпочинок
Хобі / Handmade
Колекціонування
Інше
































