Продам 1-кімнатну квартиру в новому будинку на вул. М. Малиновського.
- Категорія: Нерухомість / Квартири, кімнати / 1-кімнатні квартири
- Сайт: https://premier-odessa.com.ua/
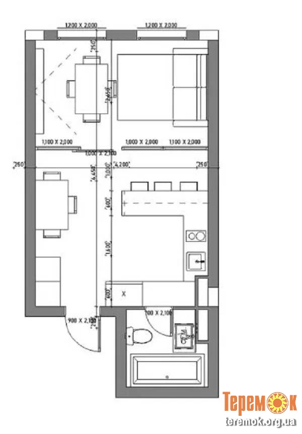
- Загальна площа, м.кв.: 31
Продам 1-кімнатну квартиру в новому будинку на вул. М. Малиновського. Загальна площа 30.5 кв. (4 поверх). Є можливість придбати 2 рівень. Стан та планування від будівельників. Автономне опалення Малоквартирний будинок із керамоблоку. Упорядкована територія. Лаунж – зона. Прекрасне розташування. Розвинута інфраструктура та транспортна розв'язка. На машині 10 хвилин до залізничного вокзалу, Аркадія.
подано: 10.03.2025
номер: 485388 перегляди: 2899
Схожі оголошення
РОЗМІСТИТИ ОГОЛОШЕННЯ на 100 дошок / Спробуй!

Все для дітей
Нерухомість
Автотранспорт
Електроніка та техніка
Бізнес / Робота
Послуги
Мода та стиль
Будинок та Сад
Меблі
Тварини та рослини
Обладнання
Будівництво та ремонт
Спорт / Відпочинок
Хобі / Handmade
Колекціонування
Обмін
Інше
Віддам / Благодійність




































