Продам капитальный дом в дачном кооперативе Пингвин., в районе улицы Базовая.
- Категорія: Нерухомість / Продаж будинків
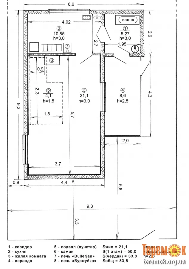
- Площа будинку, м.кв: 81
Продам капитальный дом в дачном кооперативе Пингвин., в районе улицы Базовая. От остановки Магистральная 15 минут пешком. Шлакоблок-кирпич. Потолки 3м. Первый этаж- кухня, веранда, предбанник(с ванной и буржуйкой), камин в комнате, печь-булерьян(твердотопливное отопление) на кухне, подвал с вентиляцией(стены, потолок и пол- бетон). Железные ставни. Участок 5 соток. Бассейн(была скважина-замулилась). Вьезд для машины. Хоз/постройки. Сад, виноград. Использовался как жилье. Четыре года никто не проживает. Круглосуточно вода и свет. Продается с мебелью, холодильником, телевизором, газовыми баллонами, садовым инвентарем и т.д. Продажа от собственника.
подано: 26.05.2025
номер: 537430 перегляди: 707
Схожі оголошення
РОЗМІСТИТИ ОГОЛОШЕННЯ на 100 дошок / Спробуй!

Все для дітей
Нерухомість
Автотранспорт
Електроніка та техніка
Бізнес / Робота
Послуги
Мода та стиль
Будинок та Сад
Меблі
Тварини та рослини
Обладнання
Будівництво та ремонт
Спорт / Відпочинок
Хобі / Handmade
Колекціонування
Інше



































